
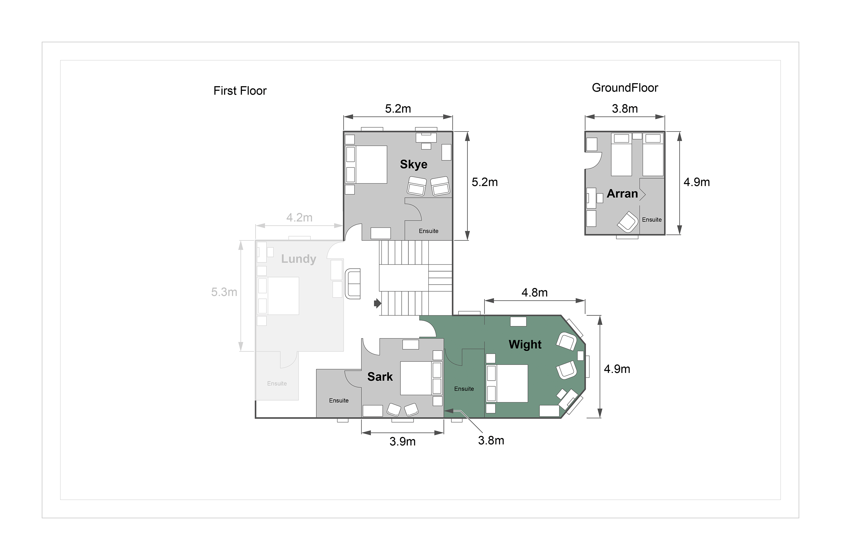
Spacious first floor room with en-suite, views of the south and east side of the garden.
• Super - King Size Bed
• Seating Area
• Dressing Table
• 32 inch TV
• Wi-Fi (Full-Fibre 300Mb)
• Tea and Coffee making facilities
• Hairdryer
• Sleeps Two